prevnext
- 1.GenehmigungspläneErweiterungen & Umbau, Feriendorf in Winterberg
für Dipl.-Ing. P.Weber / Köln - 2.Genehmigungspläne Erweiterung einer Seniorenwohnstätte in Hagen
für Architekt G.Kauermann / Dortmund - 3.Ausführungs- u. DetailpläneAufstockung eines Mehrfamilienhauses
in Duisburg für Architekt H.-D.Sturm / Mülheim - 4.Fotorealistische 3D-PräsentationNeubau eines Mehrfamilienhauses mit Tiefgarage
in Essen für FPB Bauträger / Mülheim - 5.EntwurfspläneErrichtung einer neuen Bankfiliale in Bonn
für Dipl.-Ing. M.Molai / Kaarst - 6.Genehmigungs- & AusführungspläneErrichtung eines Wohnhausanbaus in Monheim
für Dipl.-Ing. P.Dähne / Monheim - 7.Ausführungs- u. DetailpläneNeubau eines Wohn- u. Geschäftshauses in Berlin
für Dipl.-Ing. H.Schleich / Viersen - 8.GenehmigungspläneNeubau und Erweiterung Montagehallen,
Maschinenfabrik in Xanten
für Architekt H.Wellesen / Rheinberg - 9.Fotorealistische 3D-PräsentationNeubau eines Mehrfamilienhauses mit Tiefgarage
in Essen für MB-Wohnbau / Essen - 10.Bestandsaufnahme u. BestandspläneÄrztehaus mit 4 Praxen und einer Apotheke
in Rheinberg für Architekt H.Wellesen / Rheinberg - 11.GenehmigungspläneNeubau eines Gewerbeobjekts mit Büroräume
in Langenfeld für Dipl.-Ing. P.Dähne / Monheim - 12.GenehmigungspläneErrichtung eines Mehrfamilienhauses mit 6 WE
und 5 Garagen in Duisburg
für Architekt K.-H. Gomilsek / Duisburg - 13. Bestands- und RettungspläneEvangelischer Kindergarten in Ratingen
für Architekt W.-D. Werner / Ratingen - 14.GenehmigungspläneUmbau einer Produktionshalle,
Lebensmittelfabrik in Bottrop
für Gebäudeplanung Feuchthofen / Bottrop - 15.AusführungspläneNeubau eines Zweifamilienhauses mit 2 Garagen
für Dipl.-Ing. T.Stahlmann / Moers - 16. Bestands- und GenehmigungspläneUmbau und Erweiterung einer Lagerhalle als
„Medizinisches Zentrum“ in Rheinberg
für Architekt H.Wellesen / Rheinberg - 17.Bestandsaufnahme u. BestandspläneMehrfamilienhaus mit 3 Wohneinheiten
in Wuppertal für Dipl.-Ing. P.Dähne / Monheim - 18.Bestandsaufnahme u. BestandspläneLagerhalle mit Praxis, Bäckerei und Büroflächen
in Rheinberg für Architekt H.Wellesen / Rheinberg - 19.Fotorealistische 3D-PräsentationNeubau eines Einfamilienhauses in Erkelenz
für Bauträger-Görtz / Erkelenz - 20.GenehmigungspläneNeubau eines Einfamilienhauses in Alpen
für Architekt H.Wellesen / Rheinberg - 21.AusführungspläneNeubau eines Golfclubhauses in K.Lintfort
für Architekt H.Grün / Viersen - 22.Ausführungs- u. DetailpläneNeubau eines Mehrfamilienhauses in Mülheim
für Dipl.-Ing. W.Hastedt / Mülheim - 23.Ausführungs- u. DetailpläneNeubau eines Einfamilienhauses in Kaarst
für Dipl.-Ing. H.Indenhuck / Kaarst - 24.GenehmigungspläneNeubau einer Trainingshalle in Krefeld
für Dipl.-Ing. S.Lindenberg / Krefeld
1.Genehmigungspläne
Erweiterungen & Umbau, Feriendorf in Winterberg
für Dipl.-Ing. P.Weber / Köln
Erweiterungen & Umbau, Feriendorf in Winterberg
für Dipl.-Ing. P.Weber / Köln

1.Genehmigungspläne
Erweiterung einer Seniorenwohnstätte in Hagen
für Architekt G.Kauermann / Dortmund
Erweiterung einer Seniorenwohnstätte in Hagen
für Architekt G.Kauermann / Dortmund

3.Ausführungs- u. Detailpläne
Aufstockung eines Mehrfamilienhauses in Duisburg
für Architekt H.-D.Sturm / Mülheim
Aufstockung eines Mehrfamilienhauses in Duisburg
für Architekt H.-D.Sturm / Mülheim

4.Fotorealistische 3D-Präsentation
Neubau eines Mehrfamilienhauses mit Tiefgarage in Essen
für FPB Bauträger in Mülheim
Neubau eines Mehrfamilienhauses mit Tiefgarage in Essen
für FPB Bauträger in Mülheim

5.Entwurfspläne
Errichtung einer neuen Bankfiliale in Bonn
für Dipl.-Ing. M.Molai / Kaarst
Errichtung einer neuen Bankfiliale in Bonn
für Dipl.-Ing. M.Molai / Kaarst

6.Genehmigungs- u. Ausführungspläne
Errichtung eines Wohnhausanbaus in Monheim
für Dipl.-Ing. P.Dähne / Monheim
Errichtung eines Wohnhausanbaus in Monheim
für Dipl.-Ing. P.Dähne / Monheim

7.Ausführungs- u. Detailpläne
Neubau eines Wohn- u. Geschäftshauses in Berlin-Mitte
für Dipl.-Ing. H.Schleich / Viersen
Neubau eines Wohn- u. Geschäftshauses in Berlin-Mitte
für Dipl.-Ing. H.Schleich / Viersen

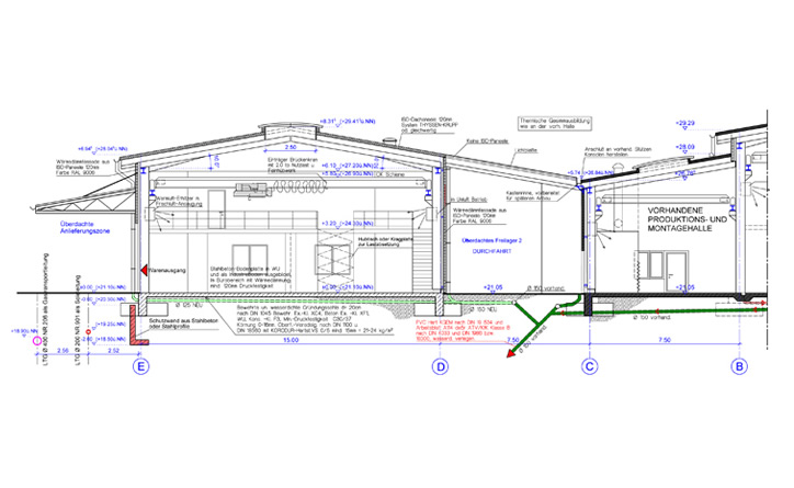
8.Genehmigungspläne
Neubau und Erweiterung Montagehallen, Maschinenfabrik in Xanten
für Architekt H.Wellesen / Rheinberg
Neubau und Erweiterung Montagehallen, Maschinenfabrik in Xanten
für Architekt H.Wellesen / Rheinberg

9.Fotorealistische 3D-Präsentation
Neubau eines Mehrfamilienhauses mit Tiefgarage in Essen
für MB-Wohnbau in Essen
Neubau eines Mehrfamilienhauses mit Tiefgarage in Essen
für MB-Wohnbau in Essen

10.Bestandsaufnahme u. Bestandspläne
Ärztehaus mit 4 Praxen und einer Apotheke in Rheinberg
für Architekt H.Wellesen / Rheinberg
Ärztehaus mit 4 Praxen und einer Apotheke in Rheinberg
für Architekt H.Wellesen / Rheinberg

11.Genehmigungspläne
Neubau eines Gewerbeobjekts mit Büroräume, Halle/Werkstatt u. Wohnung in Langenfeld
für Dipl.-Ing. P.Dähne / Monheim
Neubau eines Gewerbeobjekts mit Büroräume, Halle/Werkstatt u. Wohnung in Langenfeld
für Dipl.-Ing. P.Dähne / Monheim

12.Genehmigungspläne
Errichtung eines Mehrfamilienhauses mit 6 WE und 5 Garagen in Duisburg
für Architekt K.-H. Gomilsek / Duisburg
Errichtung eines Mehrfamilienhauses mit 6 WE und 5 Garagen in Duisburg
für Architekt K.-H. Gomilsek / Duisburg

13.Bestandsaufnahme, Bestands- und Rettungspläne
Evangelischer Kindergarten in Ratingen
für Architekt W.-D. Werner / Ratingen
Evangelischer Kindergarten in Ratingen
für Architekt W.-D. Werner / Ratingen

14.Genehmigungspläne
Umbau einer Produktionshalle, Lebensmittelfabrik in Bottrop
für Gebäudeplanung Feuchthofen / Bottrop
Umbau einer Produktionshalle, Lebensmittelfabrik in Bottrop
für Gebäudeplanung Feuchthofen / Bottrop

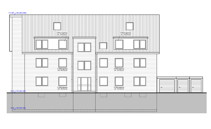
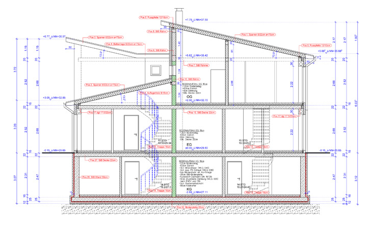
15.Ausführungspläne
Neubau eines Zweifamilienhauses mit 2 Garagen
für Dipl.-Ing. T.Stahlmann / Moers
Neubau eines Zweifamilienhauses mit 2 Garagen
für Dipl.-Ing. T.Stahlmann / Moers

16.Bestandsaufnahme, Bestands- und Genehmigungspläne
Umbau und Erweiterung einer Lagerhalle als „Medizinisches Zentrum“ in Rheinberg
für Architekt H.Wellesen / Rheinberg
Umbau und Erweiterung einer Lagerhalle als „Medizinisches Zentrum“ in Rheinberg
für Architekt H.Wellesen / Rheinberg

17.Bestandsaufnahme u. Bestandspläne
Mehrfamilienhaus mit 3 Wohneinheiten in Wuppertal
für Dipl.-Ing. P.Dähne / Monheim
Mehrfamilienhaus mit 3 Wohneinheiten in Wuppertal
für Dipl.-Ing. P.Dähne / Monheim

18.Bestandsaufnahme u. Bestandspläne
Lagerhalle mit Praxis, Bäckerei und Büroflächen in Rheinberg
für Architekt H.Wellesen / Rheinberg
Lagerhalle mit Praxis, Bäckerei und Büroflächen in Rheinberg
für Architekt H.Wellesen / Rheinberg

19.Fotorealistische 3D-Präsentation
Neubau eines Einfamilienhauses in Erkelenz
für Bauträger-Görtz / Erkelenz
Neubau eines Einfamilienhauses in Erkelenz
für Bauträger-Görtz / Erkelenz

20.Genehmigungspläne
Neubau eines Einfamilienhauses in Alpen
für Architekt H.Wellesen / Rheinberg
Neubau eines Einfamilienhauses in Alpen
für Architekt H.Wellesen / Rheinberg

21.Ausführungspläne
Neubau eines Golfclubhauses in K.Lintfort
für Architekt H.Grün / Viersen
Neubau eines Golfclubhauses in K.Lintfort
für Architekt H.Grün / Viersen

22.Ausführungs- u. Detailpläne
Neubau eines Mehrfamilienhauses in Mülheim
für Dipl.-Ing. W.Hastedt / Mülheim
Neubau eines Mehrfamilienhauses in Mülheim
für Dipl.-Ing. W.Hastedt / Mülheim

23.Ausführungs- u. Detailpläne
Neubau eines Einfamilienhauses in Kaarst
für Dipl.-Ing. H.Indenhuck / Kaarst
Neubau eines Einfamilienhauses in Kaarst
für Dipl.-Ing. H.Indenhuck / Kaarst

24.Genehmigungspläne
Neubau einer Trainingshalle in Krefeld
für Dipl.-Ing. S.Lindenberg / Krefeld
Neubau einer Trainingshalle in Krefeld
für Dipl.-Ing. S.Lindenberg / Krefeld

